本文へスキップ
生活便利帖

3段ゴミ箱・猫グッズなどDIYしてみました。

組立図を添付したものもあります。面白いと思われたら作ってみてください。

3段重ゴミ箱

ゴミ箱にスペースを取られるのは嫌なので3段重ねのゴミ箱を作ってみました。

各段にレジ袋を装着し、例えば下から紙ゴミ・プラゴミ、最上段は蓋付きなので生ゴミ用とします。

ゴミ捨ての時は各段はずして処分、再装着します。

写真 写真
3段重ゴミ箱(組立図)

猫爪研ぎ器

縦形の爪研ぎ器を作ってみました。柱で爪研ぎしたがる猫にいいと思います。飛び出たネジに爪研

ぎ段ボールを差して装着、縦置きでもしっかり固定できます。ペース板を付けたので柱の横などに自

立できます。上部のバー・穴は不安定な場合の固定用です。写真では差込み用ネジ位置が左右対

称になっていますが、段ボールの裏表交換を考えると非対称にすべきでした(図面は変更済)。

    
写真 写真 写真
  猫爪研ぎ器(組立図)

スキャナー収納棚

スキャナーの置き場所がない場合の収納兼作業台です。ローラーキャッチを外して作業台、キャッチして

収納します。

写真 写真 写真
スキャナー収納棚(組立図)

テレビ壁掛化

ホームセンターで引っ掛け金具とテレビ背面のネジ穴に合うボルト(トラスネジorなべ頭ネジ等飛び出し

少ないもの)・座金を入手します。引っ掛け金具は写真のような形状に切り出せるものです(事例は引っ

掛け部内寸約17mm)。

金具にテレビ背面ネジ止め用ボルトを通すための穴を明けます。

壁側には12t程度のスペーサ板を当てて金具が掛けられる板(事例15t×40W)を下地にしっかり固定し

ます。掛けたテレビの仰角はテレビ下部に発泡材などを当てて調整します。

事例のテレビサイズは26インチです。大サイズのものは実績ありません。2017.4

写真 写真 写真 写真

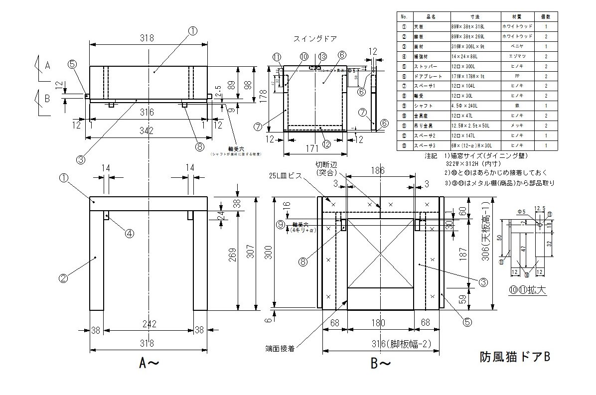
猫ドア1

猫用屋外出入口に設置している猫ドアです。出入口(322W×313H×80D<差込み深さ>)にはスイング

タイプの外壁ドアが既設ですが、開けると風が吹き込む問題がありました。

市販の猫ドアをはめ込んだ開口部の小さいボックスを作ってみました(猫ドアA)、防風効果顕著です。

猫に好みがあるかとドア自作タイプ(猫ドアB)も作ってみました。

慣れるのに1〜2日かかりましたが、どちらのタイプも今はダッシュで通り抜けています。強風雨時は引

き出して外壁ドアをロックします。

写真 写真
猫ドアA(組立図) 猫ドアB(組立図)

猫ドア2

室内の猫用くぐり穴(180□)が開放のままだと、暖房時冷気が侵入してくるとのクレームあり、スイング

タイプの仕切板を付けてみました。

材料は100円ショップで入手、穴天井部にメタルバーをビス止めし、ヒンジタイプの着磁フックでPP板を

吊しています。

たまにフックをずらすことがありますが、猫さまの通用口として使ってくれています。

写真 写真 写真

便座踏み台

昭和の人間にとって最近の便座は高過ぎないですか。数センチの踏み台があれば踏ん張れるのに、と

いうことで作ってみました。

495□×12tのベニヤ板を半円形に切り欠き加工します。切り欠きは便器曲率に概ね合っていればOKです。

この板を表面とし、床面に集中荷重がかからぬよう広く確保した底板(同じ12t材)を接合します。床面保護

のため底面側にはビスを打っていません。

木材加工が完成したら、切り欠きに合わせてカットした500□のタイルカーペットを敷いて完成です(軽く両

面テープ止め)。

板材厚み12+12=24tにカーペット5t合わせて29mmの踏み台となりました。トイレマットのようにずれたり

せず、予備カーペットを準備しておけば交換洗浄も簡単、快適です。

写真 写真 写真

単管パイプ小屋

単管パイプを使った小屋の建設です。犬小屋くらいしか作ったことないけど、基礎から棟上げまで一人

工事で仕上げました。パイプ架構の基礎穴への落とし込みと基礎コンクリート施工は窮余の一策です。

写真 写真 写真 写真
写真 写真 写真 写真
パイプ小屋建設要領(基礎施工メモ)

ドア伸縮対策

数日前は掛け金の丸かんが受け金具にきちんと納まっていたのに、ドアが数mm縮んだ(あるときは伸び

た)ように丸かん位置がずれ、掛け金が掛けづらいとしいう不具合が起こるんですね。気温変化によりドア

か受け側の伸縮が生じるのでしょう。

そこで、ドアの受け側を可動式はめ込み材に変更しました。そこに丸かんを取り付ける。伸縮した時はは

め込み材をずらして丸かん位置を微調整します。

写真

ポスト

@ポスト支柱の鉛直を確保。逆さバケツ(カット済)にジャリコンを充填する。支柱下部には抜け防止施工。

A繋ぎ止め用Uボルト(ナット共)も埋めておく。底板はポリ袋で被覆しておく(固化後剥離容易)。

B固化後バケツをはがす。

C可搬式ポスト土台の出来上がり。

写真 写真 写真 写真

ペンダントライト

引掛けシーリングを4ケ使った自作ペンダントライト、シェードに植木鉢を使っています。100円ショップで好

みのものを選びました。費用はLEDライト込み約3000円。2017.4

写真 写真

加湿器

除湿器を加湿器にしました。エステー梶uしっかり除湿ドライペット」の再利用です。使用済みプラケースを

水受け容器にします。フェイスタオルが2つ折りで水に漬かる高さに調整したひもで4ケ所を止めます。

タオルとひもを掛けるハンガーは両端が開放したタイプが便利です。

毛細管現象でタオルが湿り室内湿度に応じた速度で部屋を加湿します。

加湿速度はハンガー部でのタオルの広げ具合にも依存します。エアコンの下に吊り下げると加湿効果は一

層高まると思われます。

乾燥時は2日で500mL程度蒸発します。強制加湿ではないため、加湿が過ぎて結露するようなことはあり

ません。カビが出たら次亜塩素酸水(ex.キッチンブリーチ10+水600)で除去出来ます(加湿水に補充)。

写真

鍵掛け板・メモ掲示板

鍵どこ行った? 対策の一例です。廃材に縦2列10ケのフック(よーおれ)をねじ込みました。本箱の側面に吊

しています。

洗濯ハサミをクギ付けしているのはメモ掲示板です。縦でも横でもお好みで。写真の掲示板材は40W×12t

×780Lヒノキです。

  
写真 写真 写真

猫ハウス

メイン材料はホワイトウッド(89W×19t)とベニヤ板です。屋根には樹脂シートを貼り、脚は防腐塗装、接地

部にはフェルトを接着しました。厚板を使っているので強風でも大丈夫。枯草のしとねでご機嫌です。

  
写真 写真 写真

猫ダイニング

雨の日もお尻は濡れてもエサと頭は大丈夫。屋根は片流れの取り外しタイプとなっています。

3匹くらいまで仲良く食べれます。半ブロックで2脚を拘束すれば頭突きを食らっても動きません。

  
写真 写真 写真 写真

隙間収納棚

幅95mmの隙間を有効利用すべく製作しました。壁下の幅木を避けるためベースを追加。

使ってみると棚奥に収納物停止用のバーが必要でした。

隙間収納棚(組立図)

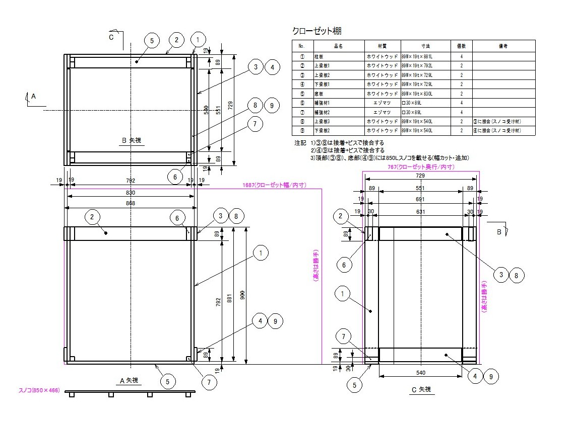
クローゼット収納棚

ホワイトウッドで枠組みを作り、スノコ(購入品)で収納物を受ける考え方です。

クローゼットと使うスノコのサイズを確認したうえで棚の設計に入りました。

ドア側の出し入れ口には底部に段差ができないよう配慮しています。

購入品ではぴったりサイズの棚が見つからず、家内で好評です。

写真 写真
クローゼット収納棚(組立図)

枕元灯

<クリップライト>

2段のパイプカンヌキ(25ミリ用[ID28])に木の丸棒(φ24×920L)を立て、底部にフェルトを接着します。

クランプタイプのランプを取り付けると枕元灯の完成です。丸棒はクルクル回るので好きなところを照らせます。

シェードには遮光性の高い素材を使っています。

<パーライト>

木製棚受けの側部に三角棒を接着し、そこにメタル板をビス止めします。LEDパーライトに着磁具(付属)をつけ、

右/左好みの位置に着磁させます。ライトは真下より45°外側へ照射されるため、まぶしさが和らぎます。

棚受けは蝶番で取り付けているので左右に回転します。2025.6

ライト: USB電源LEDストリップライト(30cmL) Temu 589円

写真 写真 写真 写真

腹筋補助具

足が浮かない状態にすると気軽に腹筋運動に取り組めます。足掛け棒をベッドの側面に常設してもいいし、

運動時だけパイプカンヌキ(25ミリ用[ID28])に棒(φ24)を通すやり方もいけます。

  
写真 写真 写真

バイス作業台

単管パイプを埋め込んだブロックを屋外に置いておきます。バイス台は垂木止め直交クランプにボルト締め

固定しておきます。バイス台をクランプで止めれば楽々バイス作業台。

コンクリート埋め込み時、パイプには抜け防止ストッパーを取付けました。

  
写真

カーテン掴み

暑い季節になると網戸越しに窓を開けますが、強風時カーテンがなびいて困ることがあります。

ペットボトルでカーテン掴みを作りました。作ったというほどでもないのですが、2つのキャップを頭同士で接

着し、一方に穴を明けひもで洗濯ハサミに通します。2020.5

外気を入れたいときは、鎖でレースカーテンを引っ張ります。フックの反対側も磁石です。2025.6

写真 写真

メリーゴーランド

購入品赤ちゃんメリーが見やすいところまで届かないため、長い棒の先に手製メリーを吊るしてあげました。

パイプブラケットにとめた吊るし棒は左右振り回し自在、前後張出し長さも可変です。ブラケットを上下させ

れば高さも可変。魚の上に風受け羽根をつけたので扇風器の風でメリーゴーランドが回ります。

吊るした扇風器を近づけると回転が速くなるよ。

赤坊はすぐに成長するので喜んだのも束の間、今は片付けられてしまいました。2020.3

動画  メリーゴーランド

コーナー棚

部屋の隅に小さな植木鉢を置いてみようとコーナー棚を作りました。模様替えするときには撤去できるよう簡

単分解タイプにしました。

まず荷重を受ける棒材を壁にビス止め、あとは棒材に掛けて組み上げていきます。三角形の受け座では面

積不足のため四半円になるよう弓形を追加しました。

残材を使った工作で費用発生なし、ビス止め以外接合は全て木工ボンドです。

写真 写真 写真 写真

吊し蚊取

吊り下げタイプの蚊取線香です。線香の支持には綴じ具(鋼板製ファスナーKOKUYO FA-2N)を使っています。

きつく差し込んだのち着火し、プラ鎖に掛けます。

途中で燃焼停止したい場合は、停止位置をU字型に曲げたファスナーで受けておきます。温度低下により消

火するようです。停止位置に小石を載せておくとより確かです。

写真 写真 写真 写真

棚から丸棒

棚があれば、丸棒と金具でハンガーを作れます。内寸24mm□の止め金具を棚裏手前にボルト締め固定し、

それにΦ23mmの丸棒を通します。丸棒と金具には1mm程度のクリアランスがあるので差し外し自在、外し

てもう一つの金具に移動もできます。

張り出した丸棒には衣類ハンガーを掛けたり、急な雨の時に物干しを掛けたりします。

棚は吊す物の重さをすべて受けることになるので、それに耐えられる強度が必要です。

    
写真 写真 写真

湯沸器連動ファン

リレーとスイッチがあれば、ガス湯沸器に連動するファンシステムを手作りできます。

湯沸器には稼働/非稼働を区別する"換気扇連動スイッチ"が内蔵されている必要があります。

連動あるいは手動モードでファンを動作させる配線図と実施例を下記に示します。

連動モード(スイッチ切の状態)では、湯沸器内蔵スイッチの切/入を検知してファンが自動的にON/OFFし

ます。手動モード(スイッチ入の状態)では、湯沸器の稼働/非稼働にかかわらずファンが回ります。

配線図(実施例)では4接点リレーを示していますが、必要接点はb接点1ケのみなので2接点仕様品で十分

です。

リレー・ソケットで1500円程度、配線は室内配線用平行コードで間に合います。

実施例で8年間問題なく動作しています。長期不在時はAC100V電源コードを抜いておくといいでしよう。

2022.2

配線図

写真 写真

棚いろいろ・ハンガー

必要に迫られてありあわせの材料で作った棚やハンガーです。

タンスに棚は、板材でタンスの壁をサンドイッチにしてボルト締めしています。

L形棚は、板の開口部をトラスタッピングネジに掛けているだけなので掛け外し自在です。

ベッドボード棚はボードをまたいでいて左右に移動できます。

立掛け棚は、壁に固定した支持材に棚材をはめ込んだノートPC置場です。

PCケースの上に置いていたパンチ類がワイヤレスマウスの通信を妨害する傾向があったため、PCから

やや離れたところに移動しました(吊り棚)。

ラジオ台はAMラジオの受信状況を最適位置に設定するための回転台です。蝶番で約180度回転します。

大きいフライパン蓋は吊り棚形式で棚裏へ収納。

簡易引出しは、つば付きA4ラックを引出しにしてみました、小物専用です。

                                         2023.5

タンスに棚

写真 写真 写真

L形棚

写真 写真

ベッドボード棚

写真 写真

立掛け棚

写真 写真

吊り棚

写真 写真 写真

ラジオ台

写真 写真 写真

スライドハンガー

写真 写真 写真
写真 写真 写真

蓋ハンガー

写真

簡易引出し

写真 写真 写真

即席傘ビス

ポリカーボネートの波板を固定するのに傘釘を使ったのですが・・・。

下地木材に固定した波板ユニットを屋根位置に取り付けて完成と思っていたら、強風で波板があおられてし

まった。傘釘の打ち込みピッチが粗かったのです。

追加の傘釘を打とうとしたら下地木材に強烈な打撃が加わり壊れそう。

釘でなくビスでねじ込むと打撃なしで補強固定ができます(そのために傘ビスがあるのか)。

傘釘の釘を取り、傘穴を通るビスに付け替えると即席傘ビスの出来上がり(写真)。

ねじ込み位置には、あらかじめビス径程度の穴を波板上面から下地木材の数mm深さまで空けておきます

(手動キリ使用)。電動ドライバーで静かに傘ビスをねじ込めました。

傘ビスはホームセンター等で販売されてはいますが、スリムなビス径のものがなかなかありません。

2023.4

写真

音声センサースイッチ

夜中に突然ゲボを始める猫ゲボ対策です。

うちの猫は10秒足らずえずいたのち床にゲボしてしまいます。吐く前に照明を点灯しバットで受け止めれば成功

なんですが、寝ぼけ眼で照明スイッチは? と探していると手遅れになってしまいます。

そこで、手をたたくと瞬時に照明が点灯する音声センサースイッチユニットを作りました。

AC100V電源と照明器具の間に音声スイッチユニットを接続すればOK 。

写真 写真 写真 写真

音声に対する応答は、明るい部屋では鈍く暗い部屋では敏感です(光センサー内蔵)。

暗い部屋では、拍手でもやや大きい咳払いでも反応し約30秒間点灯後自動消灯します。

音声センサースイッチ : YX-520P 動作電圧・出力電圧=AC110-220V 負荷電力=40W(LED max)

AliExpress 157円                               2026.1